Skip to content

Digiteo Labs - 3 Research Buildings

Moulon, Saclay, Palaiseau, FR
Project by Behnisch Architekturbuero, Digiteo Labs - 3 Research Buildings. Rectangular building with lit windows at dusk, set in an open grassy field under a dark blue sky.
Project by Behnisch Architekturbuero, Digiteo Labs - 3 Research Buildings. Rectangular building with lit windows at dusk, set in an open grassy field under a dark blue sky.

The Digiteo Labs consist of three ecologically responsible buildings dedicated to the research of information and digitalization technologies, simulation and automation processes, and materials science. Located at three different sites southwest of Paris—Saclay, Moulon and Palaiseau—the buildings are designed to accommodate laboratories, workshops, offices, and conference rooms. 

Project by Behnisch Architekturbuero, Digiteo Labs - 3 Research Buildings. Short concept sketch.

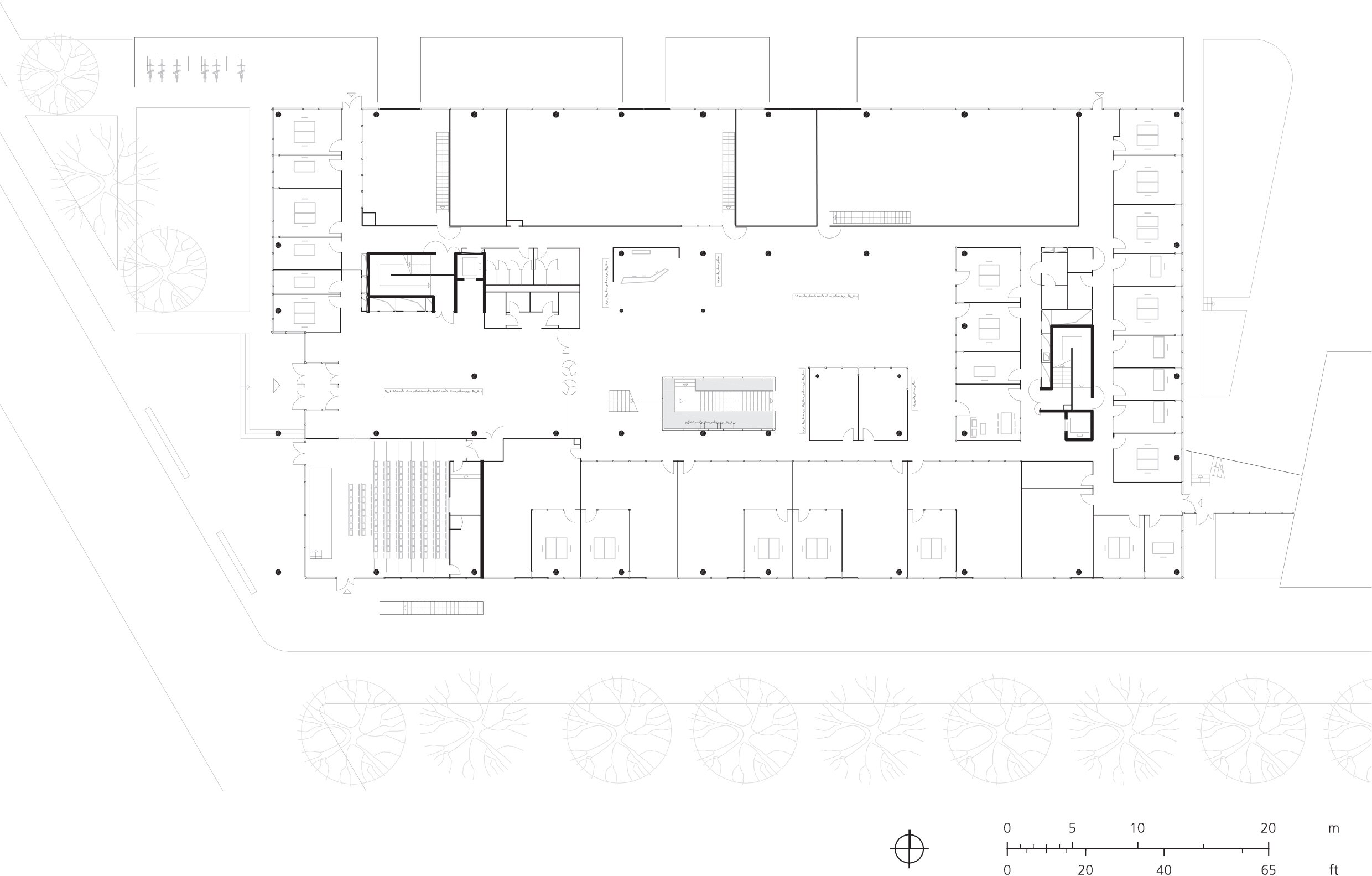
Each of the facilities is used by a variety of research institutions. The workshops, which occupy around 40% (ca. 8,000 square meters) of the usable floor area, are equipped for materials research, metals processing, computer simulation, and research in electronics. The workshops extend in part over two floors to accommodate the delivery of large items.

The three Digiteo buildings follow a similar logic: Each one features a large central atrium that runs in certain places all the way through to the exterior facade, establishing visual connections to the outside and allowing daylight into the interior. The atrium also plays a key role in the ventilation concept, as it delivers fresh air to non-lab spaces.

Project by Behnisch Architekturbuero, Digiteo Labs - 3 Research Buildings. Bright atrium with glass roof and green-accented offices, connected by walkways and railings around an open central space.

Level 1

In each building, the communal spaces are arranged around the central atrium. They include not only seminar rooms, computer pools, the library, and teaching workshops, but also open stairways, footbridges, a cafeteria, as well as a variety of multi-functional zones, referred to as “terraces.“ We designed these shared spaces to foster interdisciplinary work and casual communication among the scientists. With all their similarities, each building responds to its particular site and the needs of its users. All three are also designed to be highly flexible, enabling them to easily adapt to the user’s changing modes of work.

Project by Behnisch Architekturbuero, Digiteo Labs - 3 Research Buildings. Bright atrium with glass roof and green-accented offices, connected by walkways and railings around an open central space.
Project by Behnisch Architekturbuero, Digiteo Labs - 3 Research Buildings. Multi-level atrium with green and yellow walls, glass rooms, white railings, and stairs connecting open walkways under a skylit ceiling.
Project by Behnisch Architekturbuero, Digiteo Labs - 3 Research Buildings. Interior corridor with yellow and green walls, glass office partitions, and a window at the end bringing in daylight.
swipe
Project by Behnisch Architekturbuero, Digiteo Labs - 3 Research Buildings. Bright atrium with glass roof and green-accented offices, connected by walkways and railings around an open central space.
Project by Behnisch Architekturbuero, Digiteo Labs - 3 Research Buildings. Multi-level atrium with green and yellow walls, glass rooms, white railings, and stairs connecting open walkways under a skylit ceiling.
Project by Behnisch Architekturbuero, Digiteo Labs - 3 Research Buildings. Interior corridor with yellow and green walls, glass office partitions, and a window at the end bringing in daylight.
Client
Digiteolabs (CEA - Commissariat à l’Énergie Atomique, INRIA - Institut National de Recherche en, CNRS – Centre National de la Recherche Scientifique)
Architects
Behnisch Architekten with BRS Architects
Address

CNRS: Avenue de la Terrasse Bâtiment 17, 91198 Gif-sur-Yvette
CEA: Centre de Saclay PC 143, 91191 Gif-sur-Yvette
INRIA: 2, rue Jacques Monod Bâtiment H., 91893 Orsay
France

Gross Area

27.000 qm / 290,628 sq.ft

Gross Volume

83.700 cbm / 2,955,866 cu.ft

Competition

2006, 1st prize

The white modern building with large windows and green accent facade, set beside a lawn and paved path under a clear blue sky.

From the outset, the client expressed a clear desire for a series of highly efficient and ecologically responsible buildings. Accordingly, each building integrates a range of strategies to ensure a healthy and pleasant working environment while maintaining a strong commitment to sustainability. The workspaces rely on natural ventilation. In addition, cold air is flushed at night, and heat is recovered from the exhaust system. All materials meet the regulations of the French HQE (Haute Qualité Environnementale). Inside the atria, vertical ”green gardens” provide sound absorption, help regulate humidity, and create a pleasant, relaxing ambience for people in the interior.

Section AA

Project by Behnisch Architekturbuero, Digiteo Labs - 3 Research Buildings. The rectangular white office building with grid windows, set behind a wide green field under a clear blue sky.