Skip to content

Steinfurt Campus, Reconstructions of Buildings C+Q and New Parking Structure, FH Münster (University of Applied Sciences)

Steinfurt, DE
Project by Behnisch Architekturbuero, Steinfurt Campus/ Reconstructions of Buildings C+Q and New Parking Structure/ FH Münster (University of Applied Sciences). Multi-story building with green facade, balconies, and vertical shading elements.
Project by Behnisch Architekturbuero, Steinfurt Campus/ Reconstructions of Buildings C+Q and New Parking Structure/ FH Münster (University of Applied Sciences). Multi-story building with green facade, balconies, and vertical shading elements.

For the Münster University of Applied Sciences, we have reconstructed two laboratory buildings serving multiple departments at the Steinfurt campus, about 30 kilometers outside Münster. The structures’ massing is animated by projecting and recessed elements, with protruding balconies and outdoor walkways enhancing a sense of transparency and openness.

Site Sketch

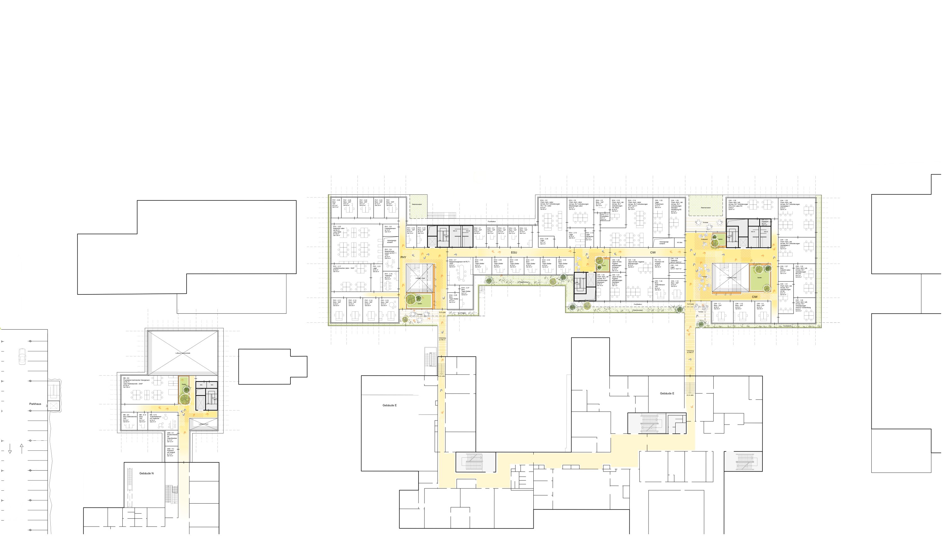
In 2021, we won the planning competition for the reconstruction of buildings C and Q. The bidding procedure called for a master plan centered on the modernization and further development of the campus. The new laboratory buildings serve the departments of Chemical Engineering, Energy - Building Services - Environmental Engineering, Electrical Engineering and Computer Science, Mechanical Engineering, and Engineering Physics, and will provide future students and researches with high-quality facilities.

Project by Behnisch Architekturbuero, Steinfurt Campus/ Reconstructions of Buildings C+Q and New Parking Structure/ FH Münster (University of Applied Sciences). People in a green courtyard with stairs and trees in front of a modern multi-story building. The people are sitting on the stairs or on benches and are hanging out in front of the building.
Project by Behnisch Architekturbuero, Steinfurt Campus/ Reconstructions of Buildings C+Q and New Parking Structure/ FH Münster (University of Applied Sciences).People are sitting on a covered seating area next to a green courtyard with trees. In the background, people are walking and strolling alongside the building.
swipe
Project by Behnisch Architekturbuero, Steinfurt Campus/ Reconstructions of Buildings C+Q and New Parking Structure/ FH Münster (University of Applied Sciences). People in a green courtyard with stairs and trees in front of a modern multi-story building. The people are sitting on the stairs or on benches and are hanging out in front of the building.
Project by Behnisch Architekturbuero, Steinfurt Campus/ Reconstructions of Buildings C+Q and New Parking Structure/ FH Münster (University of Applied Sciences).People are sitting on a covered seating area next to a green courtyard with trees. In the background, people are walking and strolling alongside the building.

Building C

While the street frontage forms a clearly defined edge that establishes a strong architectural boundary to the city, the elevations facing the campus are more varied. Green facades strengthen the relationship between the building and its outdoor context. New and existing structures come together to form a cohesive ensemble organized around a central courtyard, which offers generous outdoor common areas for gathering, events, and informal exchange among students and faculty. Tiny forests in the courtyard and north of the parking structure offer additional retention areas.

Level 1
Level 2
swipe
Level 1
Level 2

Site Plan, Level 1-2

A new connecting path provides the main access to the buildings and structures the entire campus. Its key nodes are marked by sheltered communal zones, outdoor teaching spaces, seating areas, and bicycle facilities. Second-story bridges link the new buildings C and Q to the adjacent existing structures, ensuring direct, efficient movement for students and staff while horizontally integrating the various building clusters into a unified whole.

Client
Bau- und Liegenschaftsbetrieb NRW Niederlassung Münster
Architects
Behnisch Architekturbüro
Address

Steinfurt
Germany

Gross Area

Building C:
11.817 qm / 127,197 sq.ft.

Building Q:
2.233 qm / 24,035 sq.ft

Competition

2022, 1st prize

Project by Behnisch Architekturbuero, Steinfurt Campus/ Reconstructions of Buildings C+Q and New Parking Structure/ FH Münster (University of Applied Sciences). Modern building with glass facade and orange bands, people walking in plaza.
Project by Behnisch Architekturbuero, Steinfurt Campus/ Reconstructions of Buildings C+Q and New Parking Structure/ FH Münster (University of Applied Sciences). Public space in the building with seating and planters with greenery beside large windows. People are sitting on the seating and are talking.
swipe
Project by Behnisch Architekturbuero, Steinfurt Campus/ Reconstructions of Buildings C+Q and New Parking Structure/ FH Münster (University of Applied Sciences). Modern building with glass facade and orange bands, people walking in plaza.
Project by Behnisch Architekturbuero, Steinfurt Campus/ Reconstructions of Buildings C+Q and New Parking Structure/ FH Münster (University of Applied Sciences). Public space in the building with seating and planters with greenery beside large windows. People are sitting on the seating and are talking.

Building Q

As a contribution to resource conservation, the ventilated aluminum trapezoidal sheet metal façade will be constructed using reused trapezoidal sheets. Contact was established with SWM Munich, which is dismantling a ventilated façade as part of a renovation process. Following expert assessment, this façade can potentially be reused for the new Campus Building Q. Offcut material will be repurposed into foyer furniture and planters.

Greened roof areas maximize rainwater retention, storing rainwater on-site and creating a valuable reserve. During the hot summer months, this will have a positive, cooling effect on the campus’s microclimate. Open facades provide natural ventilation, while a green shell of vertically arranged plantings offers habitat for countless insects. Photovoltaic modules on the southern facade form the vertical boundary at the top of the buildings and generate additional energy. As part of the mobility concept, parking space integrated into the ground floor in the campus’ southern area accommodates 100 bicycles in an optimal location along the central east-west path.

Parking Structure

Project by Behnisch Architekturbuero, Steinfurt Campus/ Reconstructions of Buildings C+Q and New Parking Structure/ FH Münster (University of Applied Sciences). Modern multi-story building with balconies, green facade, green roof and street with pedestrians.

Building C