Skip to content

Spinnereipark Areal

Kolbermoor, DE
Project by Behnisch Architekturbuero, Y-Houses. A modern, multi-story residential building with a wooden facade, large windows, and curved white balconies. The building is situated amidst tall trees in a green setting.
Project by Behnisch Architekturbuero, Apartment Building at the Rosengarten. Modern white apartment building with large windows and balconies reflected in a calm canal.
swipe
Project by Behnisch Architekturbuero, Y-Houses. A modern, multi-story residential building with a wooden facade, large windows, and curved white balconies. The building is situated amidst tall trees in a green setting.
Project by Behnisch Architekturbuero, Apartment Building at the Rosengarten. Modern white apartment building with large windows and balconies reflected in a calm canal.

The Spinnereipark area in Kolbermoor, a small city southwest of Munich, is the product of many historic transformations, the latest of which is a series of residential projects we’ve been realizing since 2008, guided by a comprehensive urban planning concept. The Spinnereipark is part of an abandoned manufacturing facility, the Alte Spinnerei, or old spinning mill, which played a pivotal role in the growth of Kolbermoor.

Project by Behnisch Architekturbuero, QuestForum and Rosengarten. QuestForum and rose garden with a brick chimney in the background. Flexible event space covered by a rope net structure. Everything is reflected in the tranquil canal.

Quest Forum

With multiple stakeholders involved in the area’s transformation—including the restoration of partially heritage-listed industrial buildings—our role entails the development of five distinct project types, the first of which is the so-called Quest Forum: a semi-covered outdoor space located next to the refurbished former powerhouse and completed in 2010. A combination of two tensile systems—a cable net and a membrane—contrasts the solidity of the existing structure, creating a flexible event space for exhibitions, markets, and concerts. Four pagoda-like canopies punctuate the space and offer shelter and visual identify. This tensile net structure recalls the site's history of weaving.

Elevation South

Project by Behnisch Architekturbuero, Boiler House. A white, rope-like net structure is located in the entrance area of ​​the boiler house. It is a modern building with a glass facade.
Project by Behnisch Architekturbuero, Boiler House and Rosengarten. A white, rope-like net structure is located in the background, behind the boiler house. In the foreground is the rose garden.
swipe
Project by Behnisch Architekturbuero, Boiler House. A white, rope-like net structure is located in the entrance area of ​​the boiler house. It is a modern building with a glass facade.
Project by Behnisch Architekturbuero, Boiler House and Rosengarten. A white, rope-like net structure is located in the background, behind the boiler house. In the foreground is the rose garden.
Project by Behnisch Architekturbuero, Loft Houses Kolbermoor. A row of modern white Loft Houses with large windows and balconies along the Mangfall Canal.

Loft Houses Kolbermoor

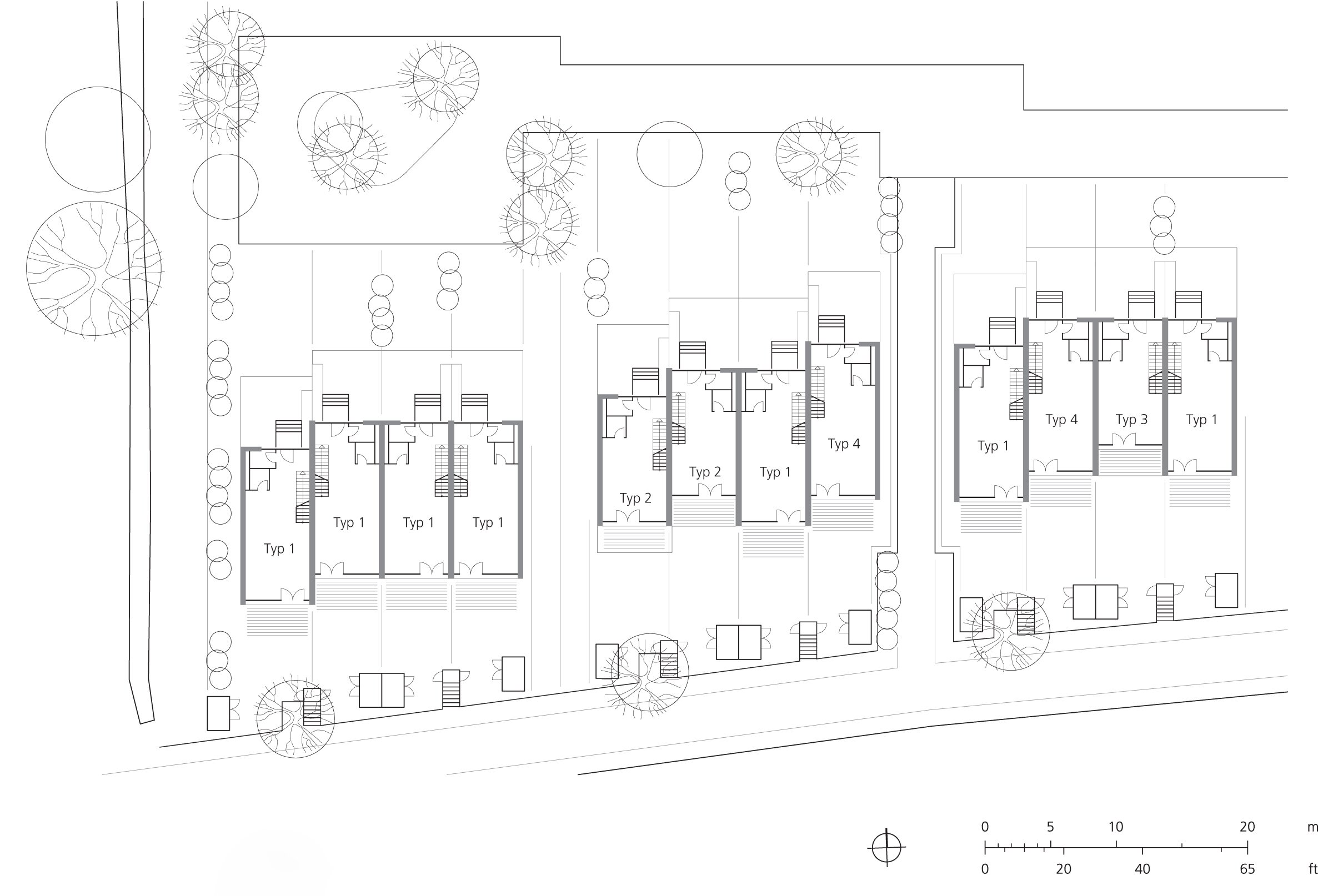
In 2011, we completed the Loft Houses near the Quest Forum, at once extending and dissolving the urban fabric along the Mangfall Canal as it transitions into the park. The twelve units are organized into three clusters, comprising four distinct building types. The construction system allows for maximum flexibility, accommodating a wide range of individual needs. Each unit includes a south-facing garden, a small northern yard, roof terraces, and balconies. Arranged like townhouses, the three to four story units feature staggered facades with recessed balconies and terraces, creating a dynamic form. Long floor plans with openings on either end ensure ample natural light and ventilation, while large front windows offer views of the forest, canal, and nearby mountains. Interior winter gardens enhance passive solar gain, promote natural summer ventilation, and visually connect the floors.

Project by Behnisch Architekturbuero, Loft Houses Kolbermoor. Front view of the modern white Loft Houses along the Mangfall Canal in an evening atmosphere.
Project by Behnisch Architekturbuero, Loft Houses Kolbermoor. A bright, modern hallway with a wooden floor, a glass wall facing the courtyard, and an open staircase leading to the upper floor. An impression into the interior of one of the Loft Houses.
Project by Behnisch Architekturbuero, Loft Houses Kolbermoor. Modern open-plan kitchen and dining area with wooden table, colorful chairs, and mezzanine above. An impression into the interior of one of the Loft Houses.
swipe
Project by Behnisch Architekturbuero, Loft Houses Kolbermoor. Front view of the modern white Loft Houses along the Mangfall Canal in an evening atmosphere.
Project by Behnisch Architekturbuero, Loft Houses Kolbermoor. A bright, modern hallway with a wooden floor, a glass wall facing the courtyard, and an open staircase leading to the upper floor. An impression into the interior of one of the Loft Houses.
Project by Behnisch Architekturbuero, Loft Houses Kolbermoor. Modern open-plan kitchen and dining area with wooden table, colorful chairs, and mezzanine above. An impression into the interior of one of the Loft Houses.
Project by Behnisch Architekturbuero, Apartment Building at the Rosengarten. Modern white apartment building with large windows and balconies reflected in a calm canal.

Apartment Building at the Rosengarten

In 2014, we completed the Apartment Building at the Rosengarten, located between the Quest Forum’s tensile structure and the Loft Houses. It comprises ten patio apartments, two maisonette apartments, and three penthouses, ranging in size from 90 to 230 m². Each of the patio apartments features a secure south-facing loggia that connects indoor and outdoor spaces. At the center of each unit, a multi-level patio topped with a skylight spans two or three levels, bringing additional light into the living areas and bathrooms while creating an open living space. While the maisonettes open onto private gardens, the penthouses extend outward to spacious roof terraces offering views of the Alps.

To the west of these housing projects lies the Spinnereipark, originally developed by the factory owners as a private park. At its center is an artificial pond, the excavation of which was shaped into the so-called Schneckenberg—named after the spiral paths leading to a pavilion at the top. These paths, laid out in the style of an English landscape park, are framed by groups of trees, including several exotic species, while the remaining spruce forest was largely left untouched.

swipe

Level 1-3

As part of the park’s urban planning concept, two types of buildings with four to six floors—five so-called Y-houses (named after their morphology), and five Conradty houses (named after an adjacent street)—form an ensemble of apartment buildings, some with office spaces, all carefully integrated into the pre-existing landscape. Within this fabric, the geometry of the Y-houses allows them to flow around the pre-existing trees, preserving as many as possible. The orientation of the Y-houses offers views towards the Alps, the park, as well as to the old spinning mill’s historic structures. This layout integrates these buildings with their surroundings while allowing natural light to enter each apartment from three different directions. Each Y-house is designed with a central core and three fingers that taper into balconies at their ends, whose white, undulating railings animate the structure and contrast strikingly with the timber facade.

Project by Behnisch Architekturbuero, Y-Houses.Two modern apartment buildings with wooden facades and balconies, nestled in a well-maintained green area with a mountain panorama in the background.
Project by Behnisch Architekturbuero, Y-Houses. A modern, multi-story residential building with a wooden facade, large windows, and curved white balconies. The building is situated amidst tall trees in a green setting.
Project by Behnisch Architekturbuero, Y-Houses. Dining area with table and orange chairs. Generous floor-to-ceiling windows lead to a terrace with seating. An impression inside one of the penthouse apartments in the Y-buildings.
Project by Behnisch Architekturbuero, Y-Houses.The stairwell of the Y-Houses. A spiral staircase with green steps and a white railing, forming a geometric pattern when viewed from above.
Project by Behnisch Architekturbuero, Y-Houses. A modern, multi-story residential building with a wooden facade and surrounding white balconies, set in a green park. A brick chimney is visible in the background.
swipe
Project by Behnisch Architekturbuero, Y-Houses.Two modern apartment buildings with wooden facades and balconies, nestled in a well-maintained green area with a mountain panorama in the background.
Project by Behnisch Architekturbuero, Y-Houses. A modern, multi-story residential building with a wooden facade, large windows, and curved white balconies. The building is situated amidst tall trees in a green setting.
Project by Behnisch Architekturbuero, Y-Houses. Dining area with table and orange chairs. Generous floor-to-ceiling windows lead to a terrace with seating. An impression inside one of the penthouse apartments in the Y-buildings.
Project by Behnisch Architekturbuero, Y-Houses.The stairwell of the Y-Houses. A spiral staircase with green steps and a white railing, forming a geometric pattern when viewed from above.
Project by Behnisch Architekturbuero, Y-Houses. A modern, multi-story residential building with a wooden facade and surrounding white balconies, set in a green park. A brick chimney is visible in the background.

Y-Houses

Client
Quest AG und Werndl & Partner GmbH
Architects
Behnisch Architekturbüro
Address

Conradtystraße 2-3
83059 Kolbermoor
Germany

Competition

2009 + 2011 Direct Commission

Gross Area

8.020 qm / 86,330 sq.ft. (1st construction phase) 23.850 qm / 256,720 sq.ft.

Gross Volume

23.730 qm / 255,430 cu.ft. (1st construction phase) 69.600 cbm / 2,445,400 cu.ft.

Photography

David Matthiessen

Photography

ARCHIMAGE/Meike Hansen

Along the northern edge of the park, the Conradty houses serve as a physical noise barrier, shielding the area from the adjacent street and train tracks. A kindergarten and daycare center for 74 children are part of one of the Conradty houses, contributing to a family-friendly and well-balanced residential community in the Spinnereipark and beyond. The kindergarten's biodiverse green roof provides a home for pollinators and can store rainwater. The five-story buildings offer apartments ranging from 40 to over 170 m2, each topped by three penthouses. All units have access to a private terrace or balcony. A prefabricated timber-frame facade with staggered balconies adds depth and animates the structure. Varying densities in the wooden balustrades produce subtle variations in privacy and openness in relation to the surroundings.

Project by Behnisch Architekturbuero, Conradty-Houses. Modern apartment building with staggered balconies and vertical wood facade panels. The varying densities in the wooden balustrades produce  variations in privacy and openness.

Conradty Houses

swipe

Level 1, 2, 5

Project by Behnisch Architekturbuero, Conradty-Houses. Multi-story residential buildings with a wooden facade and wooden balconies around a shared green courtyard with trees.
Project by Behnisch Architekturbuero, Conradty-Houses. Bright, welcoming daycare interiors with children playing on a raised carpeted area. A playground outside is visible through the large windows.
Project by Behnisch Architekturbuero, Conradty-Houses. Bright daycare interior with children and adults, curved carpeted play area and large windows.
swipe
Project by Behnisch Architekturbuero, Conradty-Houses. Multi-story residential buildings with a wooden facade and wooden balconies around a shared green courtyard with trees.
Project by Behnisch Architekturbuero, Conradty-Houses. Bright, welcoming daycare interiors with children playing on a raised carpeted area. A playground outside is visible through the large windows.
Project by Behnisch Architekturbuero, Conradty-Houses. Bright daycare interior with children and adults, curved carpeted play area and large windows.