Skip to content

New Educational Center - Handwerkskammer Niederbayern

Landshut, DE

The new building for the Chamber of Crafts establishes a clear identity while fostering internal communication and public exchange. It integrates sensitively into a heterogeneous urban context while creating a distinctive entrance to the campus.

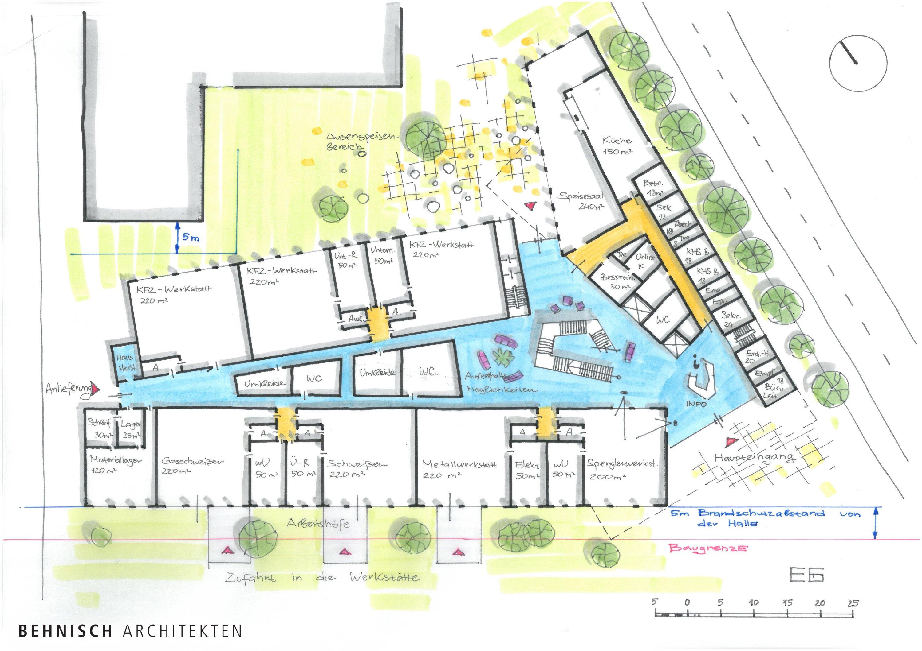
The design organizes diverse functions into clearly structured and stacked volumes, generating distinct spatial qualities inside and out. A visible main entrance in the southeast connects to green spaces, parking, and workshop areas, while a protected cafeteria garden is located on the opposite side. An atrium links both zones, turning the building into a connective element rather than a barrier. All functions are arranged around an open circulation system, enabling intuitive orientation and creating multifunctional spaces for interaction, exhibitions, and events. Each department gains a clear address while benefiting from shared synergies.

swipe

Flexible and simple layouts allow for various construction methods, with a focus on prefabrication, adaptability, and future disassembly. The building follows a low-tech approach, minimizing technical systems while ensuring robustness and low maintenance. Sustainability strategies include passive design, daylight optimization, and the reuse of existing materials. Permeable surfaces, green and retention roofs, and vegetation support sponge city principles and improve the microclimate. Photovoltaics combined with green roofs provide renewable energy, while a groundwater heat pump supplies heating, resulting in an efficient and future-oriented building.

Client
Handwerkskammer Niederbayern-Oberpfalz
Architects
Behnisch Architekturbüro, ALN Architekturbüro Leinhäupl + Neuber
Address

Am Lurzenhof
84036 Landshut
Germany

Competition

2022, 1st prize