Skip to content

Hilde Domin School

Herrenberg, DE
Project by Behnisch Architekturbuero, Hilde Domin School. Single-story modern house with wood and glass facade, set behind trees in a field of tall grass under a cloudy sky.
Project by Behnisch Architekturbuero, Hilde Domin School. Single-story modern house with wood and glass facade, set behind trees in a field of tall grass under a cloudy sky.

The extension to the Hilde Domin School features a single-story timber-frame pavilion that houses classrooms, offices, and technical spaces. Located to the south of the main complex, it affords commanding views out over the undulating landscape. With its projecting roofs and timber terraces, the structure seems to float above the site like a raft.

In 2004 Behnisch Architekten were commissioned with the extension of the award-winning single and two story school complex for domestic economics and agriculture in Herrenberg, realized by Behnisch & Partner in 1983. The extension, a single story timber frame pavilion building, which houses a range of classrooms, offices, and technical spaces, stands to the south of the existing main complex with commanding views out over the undulating landscape.

Project by Behnisch Architekturbuero, Hilde Domin School. A modern wooden house stands beside a pond, its waters reflecting rocks and reeds. The large, floor-to-ceiling windows are darkened with curtains. The right side of the building is also visible and features external shading.

With its projecting roofs and timber terraces, it seems to float above the site like a raft. Its simple, unobtrusive, low-lying form is calmly integrated into the overall complex, its dimensions corresponding to those of its mature neighbour while the chosen materials provide a welcome contrast. The proximity to the original building creates a series of differentiated interstitial spaces. Subtle modeling of the landscape serves to tie the two structures together.

Project by Behnisch Architekturbuero, Hilde Domin School. A wood-lined hallway with a green floor, glass partitions and glass entrance doors that open onto a courtyard illuminated by skylights.
Project by Behnisch Architekturbuero, Hilde Domin School. Empty room with wooden ceiling, green floor, and floor-to-ceiling windows with curtains overlooking fields and trees.
Project by Behnisch Architekturbuero, Hilde Domin School. Exterior view of the building with a floor-to-ceiling glass facade that can be shaded with curtains. The elevated building is visible through leafy trees and sits on a lawn with a wooden terrace.
swipe
Project by Behnisch Architekturbuero, Hilde Domin School. A wood-lined hallway with a green floor, glass partitions and glass entrance doors that open onto a courtyard illuminated by skylights.
Project by Behnisch Architekturbuero, Hilde Domin School. Empty room with wooden ceiling, green floor, and floor-to-ceiling windows with curtains overlooking fields and trees.
Project by Behnisch Architekturbuero, Hilde Domin School. Exterior view of the building with a floor-to-ceiling glass facade that can be shaded with curtains. The elevated building is visible through leafy trees and sits on a lawn with a wooden terrace.

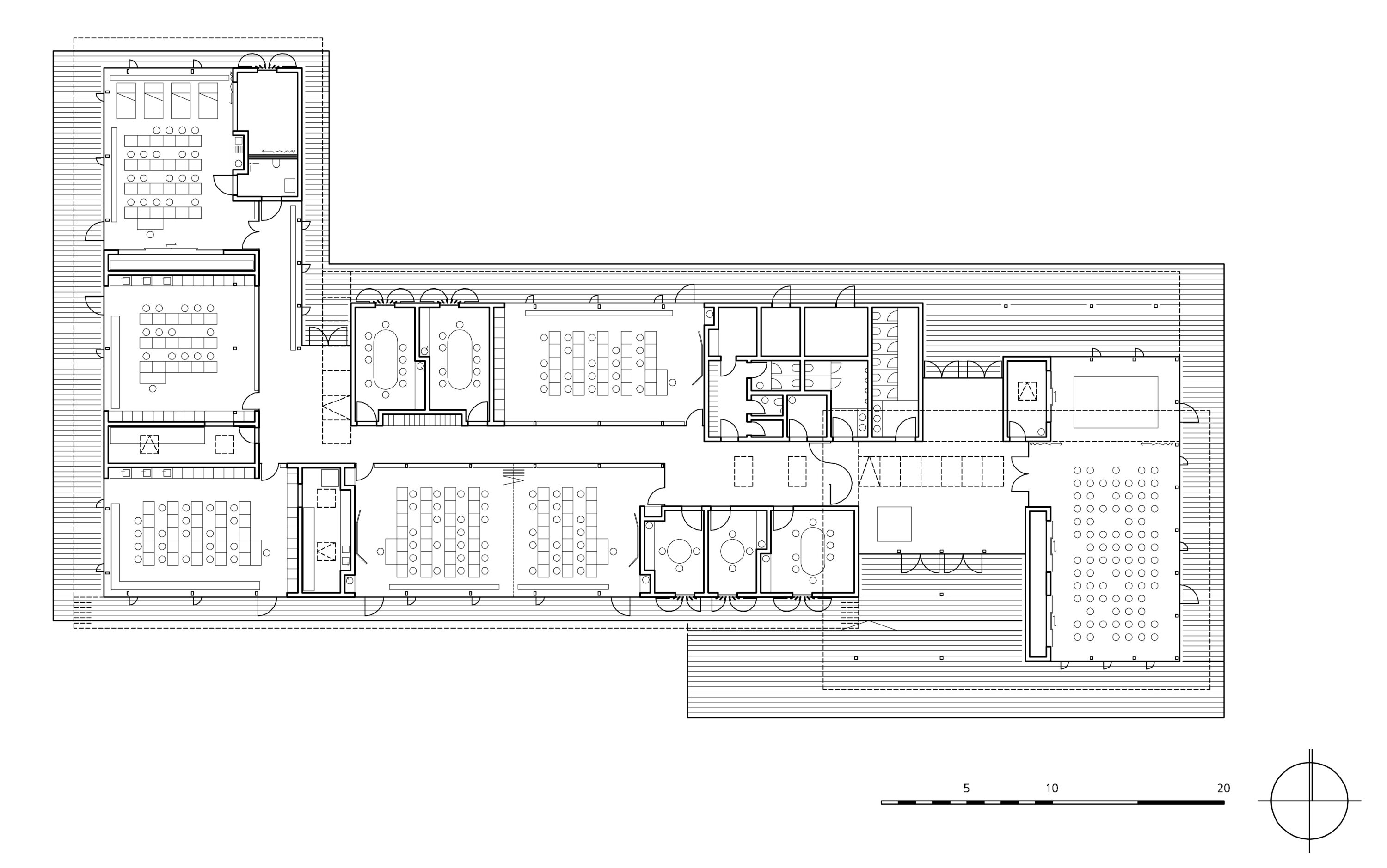
Level 1

The support rooms are arranged in the floor plan as seemingly closed boxes with the classrooms positioned naturally in the spaces in-between. Full height glazed facades and glazed partitions to the corridors create a light and open spatial structure. The rooms reserved for fine art and handicrafts have parquet flooring, all other floors are covered with bold green linoleum, which echoes the bucolic ambiance produced by the surrounding meadows and fields.

The new pavilion building makes extensive use of local timber. Its facades are playfully composed of opaque and glazed areas. Walls, both internal and external, are clad with untreated 3-ply larch panels of varying width. The ribbed roof construction is lined with wooden battens. The lighting and media supplies have been fully integrated into the construction.

Project by Behnisch Architekturbuero, Hilde Domin School. Wood-clad building facade with vertical slats and narrow windows, fronted by a wooden deck and lawn, with tree branches in foreground.
Client
Landratsamt Böblingen
Architects
Behnisch Architekturbüro
Address

Längenholz 8
71083 Herrenberg
Germany

Gross Area

1.200 qm / 12,910 sq.ft

Gross Volume

5.690 cbm / 200,940 cu.ft

Competition

Direct Comission 2004

Photography

Christian Kandzia