Skip to content

Landesgirokasse am Bollwerk

Stuttgart, DE
Project by Behnisch Architekturbuero, Landesgirokasse am Bollwerk. Modern glass office buildings at a city street intersection with tram wires, pedestrians, and a clear blue sky.
Project by Behnisch Architekturbuero, Landesgirokasse am Bollwerk. Modern glass office buildings at a city street intersection with tram wires, pedestrians, and a clear blue sky.

Located in the heart of Stuttgart, the new administrative center for the Landesgirokasse Bank (now BW Bank) occupies an entire city block and houses facilities for more than 1,000 financial services staff. Sensitive massing, the humanizing rhythms of the facades, and the introduction of semi-public programs—a cinema and restaurant at ground level—ensure that the building avoids the character of an urban monostructure. 

The five-story perimeter building responds to the eave heights of its neighbors. Above this, three additional stories step back to minimize impact on the surrounding streets—except for a lounge for friends of the Landesgirokasse, which projects over the street.  The setbacks create a series of roof terraces and gardens and contribute to a more interesting skyline.

Project by Behnisch Architekturbuero, Landesgirokasse am Bollwerk. Interior of a modern building with blue walls, glass elevator, balconies, and a transparent roof structure letting in daylight.

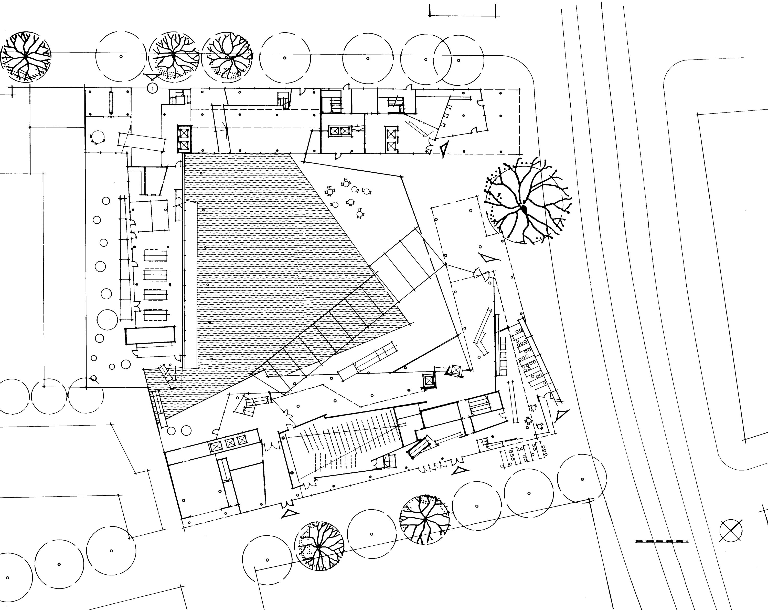
Site Plan

The classical perimeter block reinforces the street pattern while protecting a central courtyard from noise. Open to the public and set one level below the ground floor, the courtyard features a large expanse of water and a sloping glass roof that encloses the main entrance hall. The hall extends over four floors and also hosts exhibitions and events. The water extends into the hall—blurring the boundary between interior and exterior—and introducing reflected sunlight into unexpected areas. Rooftop heliostats intensify daylight and amplify reflections that lead to an interplay of light, color, and water—creating a new and uniquely animated urban space.

The courtyard level accommodates training rooms, a cafeteria, a recreation zone and the kitchen, all of them looking onto the water. The office wings are defined by a shallow plan that allows for each workstation to be located near the facade, improving natural ventilation and access to daylight.

Project by Behnisch Architekturbuero, Landesgirokasse am Bollwerk. Spacious modern lobby with glass walls, reception desk, and a person standing behind the counter, with reflections on the polished floor.
Project by Behnisch Architekturbuero, Landesgirokasse am Bollwerk. Modern lounge with colorful rugs, armchairs, and floor-to-ceiling windows overlooking a city skyline.
Project by Behnisch Architekturbuero, Landesgirokasse am Bollwerk. Office corridor with glass walls, wooden staircase, and carpeted floor leading past rooms and coat racks.
Project by Behnisch Architekturbuero, Landesgirokasse am Bollwerk. Rooftop terrace with metal table and chairs overlooking the city skyline, hills, and a tower under a partly cloudy sky.
swipe
Project by Behnisch Architekturbuero, Landesgirokasse am Bollwerk. Spacious modern lobby with glass walls, reception desk, and a person standing behind the counter, with reflections on the polished floor.
Project by Behnisch Architekturbuero, Landesgirokasse am Bollwerk. Modern lounge with colorful rugs, armchairs, and floor-to-ceiling windows overlooking a city skyline.
Project by Behnisch Architekturbuero, Landesgirokasse am Bollwerk. Office corridor with glass walls, wooden staircase, and carpeted floor leading past rooms and coat racks.
Project by Behnisch Architekturbuero, Landesgirokasse am Bollwerk. Rooftop terrace with metal table and chairs overlooking the city skyline, hills, and a tower under a partly cloudy sky.
Client
Landesgirokasse Gründstücksanlagengesellschaft
Architects
Behnisch, Sabatke, Behnisch
Address

Fritz-Elsas-Straße 31
70174 Stuttgart
Germany

Gross Area

48.000 qm / 516,480 sq.ft

Gross Volume

188.000 cbm / 6,638,280 cu.ft

Competition

1991, 1st prize

Photography

Christian Kandzia

Project by Behnisch Architekturbuero, Landesgirokasse am Bollwerk. Atrium with glass roof and steel beams, greenery and people sitting at tables in a café-like space.

Occupying most of the site, the building left no room for landscaping, circumstances that made facade design especially important. The facades maintain an overall sense of clarity and functionality and are yet visually varied. A free use of colors creates a lively interplay of surfaces and lines within the regular grid of the facade.

The energy management system controls both mechanical ventilation and external sun-shading. Offices are equipped with cooling ceilings, where water circulating above suspended ceilings cools the air and ensures a pleasant degree of humidity. Additional features, such as manually operated openings and small impact-rain proof vents in the facades for night flushing further contribute to a healthy atmosphere.

Section AA

Project by Behnisch Architekturbuero, Landesgirokasse am Bollwerk. The building complex with glass pyramid roof over a courtyard, surrounded by offices and city skyline in the background.